Hotline: (069) 97460-666
(Mo-Fr 9.30-17.30 Uhr)
Kalendersuche Kalendersuche Kurse filtern Kurse filtern Kalendersuche Last Minute Vegetarisch   Vegetarisch English Classes   English Classes
 
Die Genussakademie Frankfurt bild

Genussakademie Atelier 3.0

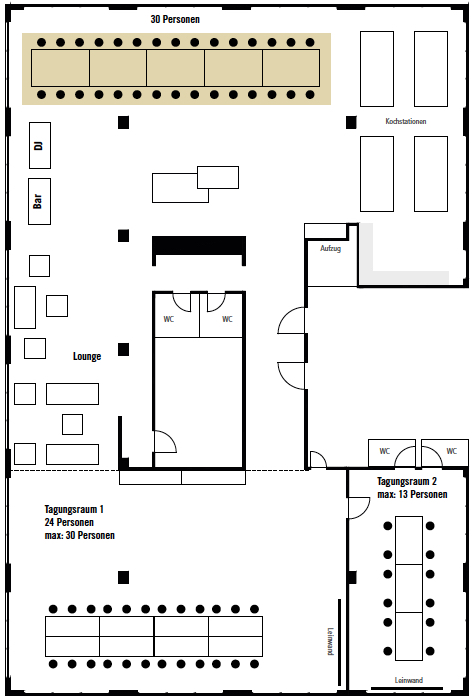
Grundriss
Karte

Größere Kartenansicht
 
weitere Locations